【老潘说】你的产品如何不重要,重要的是客户如何“认知”你的产品?这话虽然过了点,但其实也有靠谱的成分在里面。即产品展示很重要!
正如善于营销的房企都强调一套说法,即地产销售有“三宝”,售楼处,样板房和示范区!
那些善于做营销的房企,总是基于客户视角去做销售三宝的惊艳体验,即让潜在客户享受一场居住视觉盛宴,又能刺激客户畅想未来生活的种种美好。最终在愉快的心情中,在美好的预期下,完成销售。
他山之石,可以攻玉,这个假期特别推介中国60个最美售楼处示范区,至于谁最美不重要,重要的是可以让大家多多对比,借鉴反思,刺激灵感,做出更优美、更惊艳的售楼示范区。
来源:景观周
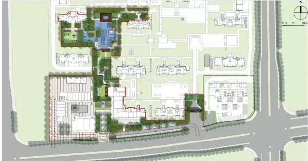
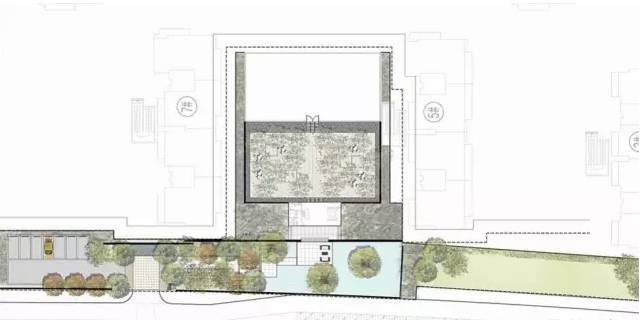
1
深圳万科瑧山府营销中心





2
北京首创天阅西山示范区




3
苏州建发独墅湾示范区






4
上海万科翡翠雅宾利示范区





5
成都蓝光·雍景王府示范区




6
苏州中航•樾园示范区





7
北京龙湖景粼原著示范区





8
上海龙湖天璞示范区





9
厦门龙湖天宸原著示范区景观





10
南宁万科金域蓝湾展示区





11
广州龙湖天宸原著示范区景观





12
上海万科云间传奇展示区





13
苏州万科·玲珑东区示范区景观





14
沈阳中海和平之门售楼处景观



15
南京旭辉铂悦·金陵售楼部





16
深圳万科梦工场展示区景观



17
合肥旭辉铂悦•庐州府示范区





18
上海万科五玠坊售楼处景观


19
上海万科海上传奇示范区景观




20
上海万科翡翠滨江售楼处景观



21
上海佘山玺樾示范区景观




22
上海保利翡丽云邸示范区景观



23
清远北部万科城示范区景观



24
宁波龙湖香醍漫步示范区景观




25
南京长岛观澜润园示范区景观



26
南京华府国际售楼处景观




27
南昌新力钰珑湾示范区景观



28
南昌绿地博览城示范区景观





29
南昌海悦台示范区景观


30
西安万科大明宫示范区景观



31
廊坊中骏四季花都展示区景观



32
昆山锦溪岛尚示范区景观



33
昆明中航云玺大宅示范区景观



34
昆明绿地-云都会示范区景观




35
晋江龙湖嘉天下示范景观



36
江西景德镇景悦示范景观




37
江苏无锡富力十号展示区景观



38
江苏泰禾江阴院子示范区景观





39
济南万科天泰金域国际示范区景观


40
北辰旭辉壹号院






41
惠州万科城华府售楼处景观




42
惠州泡泡海家园展示区景观





43
杭州中粮方圆府示范区景观







44
杭州千岛湖六合浅山售楼处景观





45
杭州昆仑公馆展示区景观






46
杭州富力十号示范区景观





47
广州时代外滩示范区景观







48
福州鲁能公馆示范区





49
佛山龙湖春江名城示范区景观










50
东莞万科松湖中心示范区景观











51
成都合景誉峰售楼处景观







52
北京五矿万科如园售楼处景观






53
北京金地中央世家示范区景观





54
北京当代旭辉墅售楼处景观








55
北京大兴首开万科中心售楼处






56
北京保利东郡示范区庭院景观






57
包头富力城展示区景观







58
重庆龙湖·紫云台示范区



59
中山万科柏悦湾示范区景观







60
烟台华润中心凯旋门示范区景观


